概念 | Conception
作为一个整体,孔庙出色的例证了中国规划思想,而且,在世界历史上,可能亦无他处能与他的持续发展相提并论。——梁思成《中国的圣地》
曲阜古建筑博物馆的设计从建筑与展示一体性设计出发,聚焦古建筑技艺在今日的文化性与当代性、技艺性与艺术性的相互关系上。在五百平米的建筑空间中,设计聚焦曲阜明清官式古建筑构筑技艺,力求通过对“博”与“物”的当代转译,来找到嫁接中国建筑技艺中“古”与“今”的桥梁。
通过对古建筑技艺的回顾性反思,来呈现古建筑形制的当代记忆。展览设计通过横向的文脉与历史梳理,与纵向的空间形式转化来构建易于当代大众了解与学习古建筑的平台与窗口。
▼ 入口处立面

空间与叙事 | Space and narration
原有空间为曲阜市后作街的五十年代老厂房,厂房整体呈现出断裂式的空间布局。空间不具有流通性,功能性较差。
▼ 厂房旧貌

▼ 概念生成

伯纳德·屈米将空间界定为一种”诱发事件”。没有叙事与事件的发生,空间就不复存在。空间在一定程度上可理解为事件的初始自变量。叙事空间不是单一的线性叙事结构,而是双向的,综合的,具有时间性的多维度媒介。媒介,即信息。
曲阜古建筑博物馆的叙事主题为“成器之道,文枢之光”。
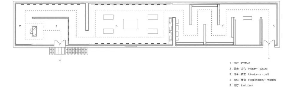
展览在空间叙事上共分为三个板块,即历史·文化、传承·技艺和责任·使命,三个板块通过夹叙夹议的叙事结构,粗线条梳理了曲阜古建筑的生发、沉寂、再到鼎盛的历程。具有历史性的信息与具有叙事性的空间构成整体系统结构。
历史·文化板块


传承·技艺 板块

▼ 悬挂的展示框架

▼ 展台近景

责任·使命板块

▼ 轴测图

▼ 平面图

项目地址:曲阜,山东
曲阜市后作街一号
项目面积:500平方米
策展人:孔岑蔚
设计:孔岑蔚
学术顾问:李永革 由少平 徐会臣
展览执行:赵山鹰 孔令德 林丙焕 薛芊芊 孔德铭
文字编辑:徐会臣 韦群 孔岑蔚
建成时间:2017.09